Katayama's Page
A thing needed is full.
If it gives, I will search here!
DRAWING,CAD etc LINK PROFILE


  SEARCH

  ADVERTISE

 NOTICE
★推奨閲覧環境★
Internet Explorer5.5〜Windowsです。
CSSを使用しています。
Netscape・Macでは表示されない部分があるかもしれません。
できれば最新版Internet Explorerの閲覧をおすすめします。

★LINK FREE!★
■site name
Katayama's Page
■url
https://cad.pya.jp/
■web master
Katayama
■banner

その他のサイズ
■お気に入りに追加





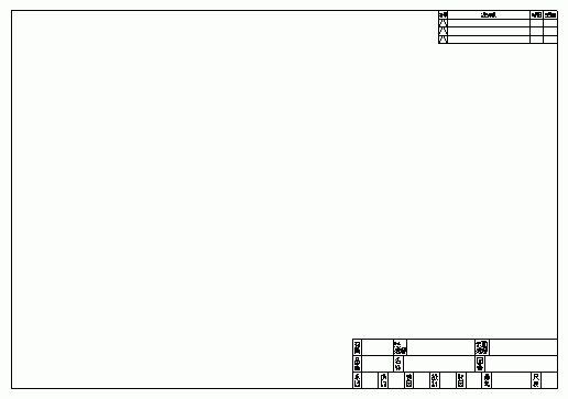
ホーム > DRAWING,CAD > 機械製図 > 勉強方法 > 図枠,製作部品表,購入品表の作成

図枠,製作部品表,購入品表の作成


  • 図枠,表題欄は企業ごとに決まっているので、通常は作成せずに、既存の図枠,表題欄を使用する。
    この演習では、以降の演習で使用するので作成する。
    • 図枠
    • 表題欄
      • JIS B 0001表題欄記入方法4.(4)に従って作成する。
        表題欄の寸法,項目の配置は規定されてないない。
        この演習では、企業名,投影法は省略した。(”原則として”とあるので、必ずしも規格に従う必要は無い。)
        組立図,部品図で、共通使用。
    • 製作部品表,購入部品表
      • 作成しない場合もあるが、それ相当の物は必要。
        作成しない場合は、組立図の中に記入したり、電子データとして入力したりする。 この2つの表は、製作,購入手配を効率的に確実に行う為に必要。

図枠 zuwaku_a3.dxf (13 kb)

製作部品表 seisakubuhinhyou_a3.dxf (13 kb)

購入部品表 kounyuuhinhyou_a3.dxf (13 kb)

戻る



このページのトップへもどる

 
 このサイトに掲載されている記事・写真・図表などの無断転載を禁じます。
Copyright © 2003 Katayama's Page all rights reserved. Designed by TG